Продается 2-х комн. новостройка, 58.08 кв.м., 7/10 эт
Обзор№ - 1934
| Стоимость | 3 136 320 |
|---|---|
| Стадия строительства | строится |
| Год постройки | 2022 |
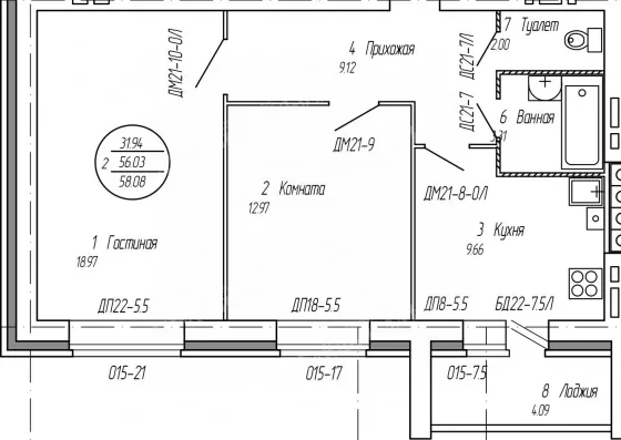
| Площадь, кв.м. | 58.08 |
| Жилая площадь | 31.94 |
| Площадь кухни, кв.м. | 9.66 |
| Комнат в квартире | 2 |
| Этаж | 7 |
| Этажность | 10 |
| Материал стен | Кирпич |
| Ремонт | Черновая отделка |
| Тип сделки новостройки | первичная продажа |
| Статус Недвижимости Авито | Квартира |
Адрес
| Населенный пункт | Йошкар-Ола |
|---|---|
| Улица | улица Фестивальная |
В избранное 2-к. кв 58.08 кв.м 7/10 эт.
Компания "КапиталЪ недвижимость" представляет к продаже двухкомнатную квартиру в новом строящемся доме
- Развитая инфраструктура на районе: супермаркеты, детские садики, остановки общественного транспорта.
В доме поквартирное отопление, низкие коммунальные платежи даже в зимний период
Агентство Недвижимости "КапиталЪ недвижимость" оказывает широкий спектр услуг:
Обменяем вашу старую квартиру на жилье в новостройке!
Юридическое сопровождение на всех этапах!
- продажа / покупка жилой и коммерческой недвижимости
- аренда, обмен, дарение недвижимости
- осуществляем полное юридическое сопровождение сделок
- делаем оценку недвижимости помогаем получить одобрение банка на ипотечный кредит даже в самых сложных случаях.









